Powrót
Start
Udostępnij
Najnowsze
Wróć do artykułu
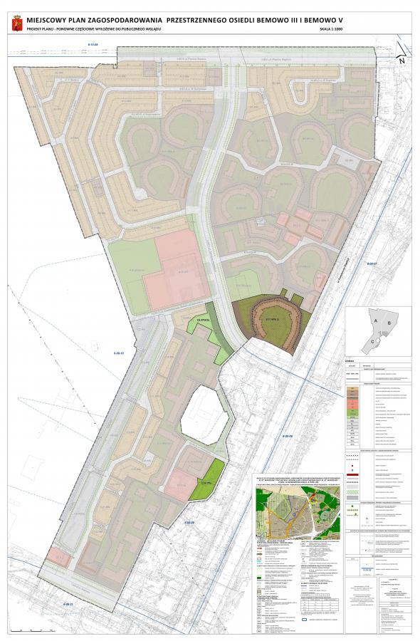
Trwają konsultacje społeczne w sprawie zagospodarowania terenu przy Lotnisku Bemowo. Sprawdź jak przekazać swoje uwagi
Galeria
Zdjęcia Trwają konsultacje społeczne w sprawie zagospodarowania terenu przy Lotnisku Bemowo. Sprawdź jak przekazać swoje uwagi - fotorelacja
23/04/2026 | Autor:
iBemowo.pl
|
źródło:
ibemowo.pl
Budowa - zdjęcia
1 z 2
2 z 2
Reklama
Najnowsze wiadomości
23/04
Trwają konsultacje społeczne w sprawie zagospodarowania terenu przy Lotnisku Bemowo. Sprawdź jak przekazać swoje uwagi
19/04
Siedział na ławce z siekierą. Niebezpieczne zdarzenie na Bemowie
18/04
Wzrost zgłoszeń przemocy domowej na Bemowie. Buduje się nowy Ośrodek Pomocy Społecznej
18/04
Dzień Ziemi na Bemowie. Wymień śmieci na sadzonkę
16/04
Do Kampinosu bez auta. Ruszają dwie nowe linie dla rowerzystów z Grodziska Mazowieckiego
13/04
Japonia na Bemowie. Wiśnie pięknie zakwitły na Placu Kasztelańskim
11/04
Veturillo na Chrzanowie? Jest wniosek o nowe stacje rowerowe
10/04
Nowe ustalenia w sprawie budowy trasy S7. Jest odpowiedź GDDKiA na pytania radnych
09/04
Makabryczny odstrzał dzików na Bemowie. Lasy Miejskie wydały oświadczenie
07/04
Międzynarodowa edukacja w Warszawie. Dlaczego rodzice wybierają szkołę brytyjską?
06/04
Zbiórka krwi przed Galerią Bemowo. Krwiobus rusza już w ten piątek
04/04
Bemowo otwiera boiska dla mieszkańców. Gdzie można poćwiczyć za darmo?
03/04
Jeże zagrożone na bemowskich drogach. Miasto nie postawi znaków ostrzegawczych przy drogach
01/04
Tajemnice Wielkiej Nocy
31/03
Nowe informacje w sprawie wiaduktu na skrzyżowaniu Lazurowej i Górczewskiej. Miasto się wycofuje
28/03
Nielegalne wysypiska śmieci na Górcach. Radny interweniuje
26/03
Groźny incydent na Lotnisku Bemowo. Samolot zjechał z pasa startowego
24/03
Najlepsze trasy rowerowe na Bemowie. Zaplanuj wycieczkę rowerową w swojej okolicy
22/03
Udawał policjanta - sam został zatrzymany przez policję. Niesamowita historia kryminalna z Bemowa
21/03
Nielegalne wysypisko śmieci na Bemowie. Sprawca zostawił swoje dane osobowe w śmieciach